Hoppa till huvudinnehåll
Brf Psalmboken 6

Kontakta styrelsen om du saknar föreningens gemensamma inloggning.

  • Återställ ditt lösenord

Kontakta styrelsen om du saknar föreningens gemensamma inloggning.

  • Återställ ditt lösenord
  • Hem
  • Nyheter
  • Kontakt
  • Om föreningen
    • Originalritningar
    • Renoveringar & underhåll
  • Området
  1. Hem
  2. Om föreningen
  3. Originalritningar

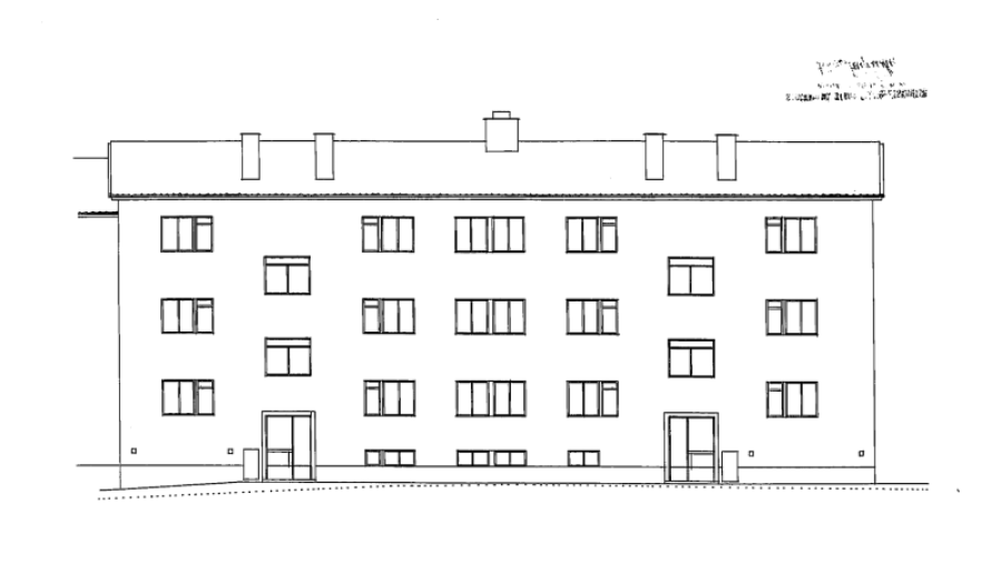
Originalritningar

Här är originalritningar för huset om man är intresserad av att se hur sin lägenhet såg ut i 1939 

Filer
Planer.pdf
Fasadritningar och sektion.pdf
Bild

Snö på Grundläggarvägen 33-35

Nu när snön ligger tung över Psalmboken 6 :)

Läs mer

Nytt från Bostadsrätterna

Här ser du de tre senaste artiklarna från bostadsratterna.se

Andrahandsuthyrning: Nya regler från 1 juli
Riksdagen har beslutat om nya regler i syfte att fler medlemmar ska kunna hyra ut sina bostadsrätter i andra hand, och under längre tid, något som Bostadsrätterna motsatt sig. Samtidigt förtydligas...
Ny rapport: Elnätsavgifterna fortsätter stiga kraftigt
Elnätsavgifterna fortsätter att öka kraftigt och stiger med i genomsnitt 8 procent. På tre år har elnätsavgifterna ökat med mer än fem gånger inflationen. De bolag som infört effektavgifterna höjer...
Fyra stipendier utdelade hittills i år
Bostadsrätterna har haft nöjet att bara under första halvåret dela ut fyra uppsatsstipendier. Stipendiet delas ut löpande under året och det är av särskild betydelse när arbetena behandlar tidigare...

Gå till Bostadsrätterna

Psalmboken 6

 

Grundläggarvägen 33-35

168 33 Bromma

 

Kontakt: styrelsenpsalmboken6@gmail.com

Bostadsrätterna logo

Webbplatsen är en förmånstjänst från Bostadsrätterna.
Föreningen ansvarar för allt innehåll på denna webbplats.

This page has been automatically translated by Google Translate